Home
About
Services & Products
Our Process
Gallery
Contact Us
✕
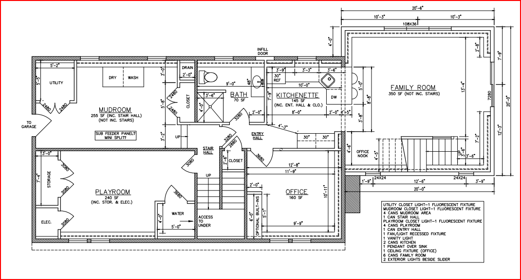
Finish Basement Addition Project